2 Chalvey Road East, Slough
0 Bedroom commercial Let
£70,000
per month
Key Features
- Flexible usage options
- Secure external yard area
- Office and warehousing split
- New lease available – terms negotiable
Property Description
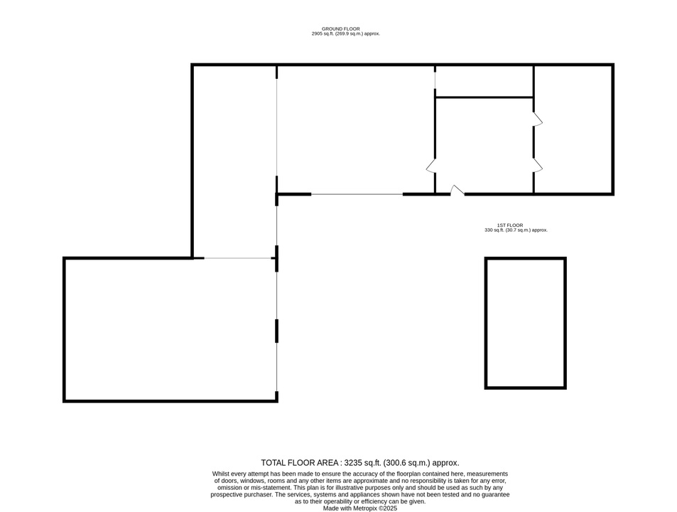
Apex Real Estate is pleased to present this spacious and versatile warehouse unit available to rent in Slough. Offering approximately 3,235 sq ft of internal space and an additional 2960 sqft of secure external yard, this property is ideal for a variety of uses including MOT centre, mechanical workshop, bodyshop, tyre shop, or general storage.
The premises are arranged over two floors, with a large open-plan warehouse area complemented by dedicated office space on both the ground and first floors – perfect for operational efficiency and administrative use.
Flexible usage options
Secure external yard area
Office and warehousing split
New lease available – terms negotiable
Whether you’re looking to expand your automotive business or seeking adaptable industrial premises, this property offers exceptional potential in a prime location.
Viewings are highly recommended.
Contact Apex Real Estate Slough today on 01753 336 444 to arrange a viewing or for further information.
Additional Details
- Rights and Easements
- Risks
Broadband Speeds
Upload Speeds Upto: 1000 Mbps
Estimated broadband speeds provided by Ofcom for this property’s postcode.
Related Properties
Book a Valuation
Discover Your Property’s Potential with Apex Real Estate. Our Property Valuation Service offers a comprehensive assessment, combining market expertise with innovative technology.






